Arch' Visualization
Turning 2D plans into 3D clarity, this Revit floor plan is transformed into a fully photorealistic visualization. Every detail, from lighting and textures to furniture and finishes, is brought to life with precision, allowing anyone to instantly understand the design. Clients, architects, and stakeholders can explore the space virtually, gaining a clear sense of scale, flow, and atmosphere. By converting technical drawings into immersive 3D visuals, we bridge the gap between imagination and reality, making complex architectural concepts easy to visualize and communicate. Every project becomes instantly tangible, compelling, and clear.




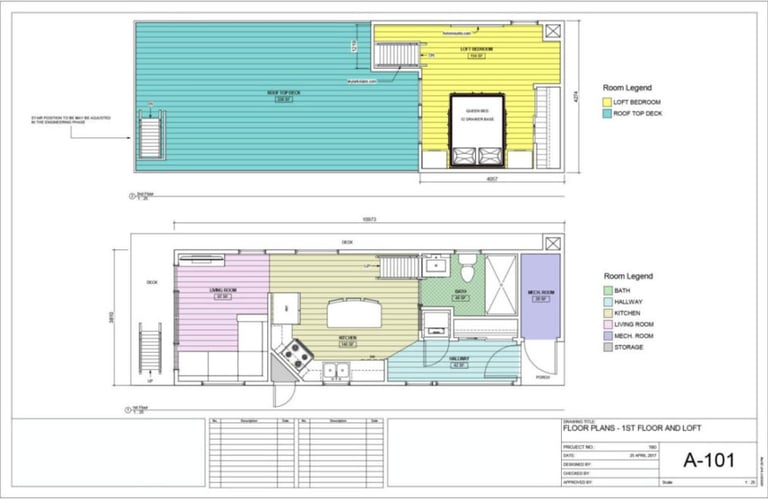
2D Floor Plan - 1st Floor and Loft
3D Arch' Visualization of Floating House
Arch' Visualization Interiors
Step inside spaces brought to life with photorealistic interior visualizations, capturing lighting, textures, furnishings, and flow, allowing clients and stakeholders to instantly experience scale, atmosphere, and design intent.








A bold, open-concept bathroom with dual showers, curved walls, lap pool, sauna, and central stone benches for seamless relaxation.
Modern lobby with maple wood flooring, curved reception desk, split-level ceiling, recessed LED lighting, and art-filled walls creating an inviting space.
Bright fitness center with pink mat flooring, mirror walls, LED lighting, treadmills, dumbbell racks, and versatile exercise equipment.
Luxurious indoor pool with white and gold-accented walls and ceiling, recessed lighting, and teak chaise lounges, creating an elegant, serene retreat.
Arch' Visualization Exteriors
Experience architectural designs brought to life with photorealistic exterior visualizations, capturing materials, lighting, and landscape details, allowing clients and stakeholders to instantly understand scale, context, and atmosphere.








